Zurück zu liste
Objekt 693 - Casa Terrazzo
Ein bewohnbares "Schnäppchen-Objekt" mit 4 Ferienwohnungen, in ruhiger Panoramalage und Meernähe
 
Gesamtfläche300 qm
Grund3.000 qm
PreisVB
ProvinzPesaro/Urbino 12 Kmzum Meer zwischen Fano und Senigallia
Beschreibung
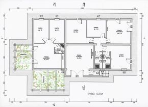
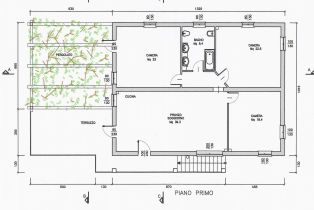
Hervorragendes Preis-/Leistungsverhältnis - ein echtes Schnäppchen! Für wen kommt das Haus in Frage? Das Haus eignet sich für Investoren und Eigennutzer gleichermassen und ist ideal für Personen, die die folgenden Vorteile schätzen:  Sie wollen die Immobilie sofort nutzen bzw. vermieten, aber auch die Möglichkeiten haben, im weiteren Ausbau Ihren eigenen Geschmack und Ideen zu verwirklichen  Sie suchen absolute Ruhe und einen Platz zum Abschalten  Sie lieben das Meer und die Berge gleichermassen  Sie suchen Abgeschiedenheit, wären aber froh um einen zuverlässigen und netten deutschsprachigen Nachbarn in der Nähe, der ständig vor Ort ist  Für Sie kommt nur ein solides und modern renoviertes Objekt in Frage Was sind die Eckdaten?  Wohnfläche ca. 300qm, Grund ca. 3000qm komplett umzäunt (ggf. erweiterbar)  Komplettsanierung Hauskörper incl. Fundament, Dach etc. erfolgt bis auf OG (Ausbaugenehmigung liegt vor). Gaszentralheizung mit elektronischer Regelung und separaten Gaszählern  Im EG 3+1 separate Wohneinheiten mit Gas/Wasser/DuWC, ideal auch als Ferienwohnungen zum vermieten  Sehr flexibler Grundriss: Zwei Monolocali sowie zwei vollständige Wohnungen mit 4 bzw. 6 Betten, letztere kombinierbar mit einem der Monolocali  12 km vom Meer bei Marotta, sehr ruhige und sichere Lage am Ende einer Sackgasse (strada bianca), Alleinlage mit einzigem Nachbar in ca 300m Entfernung (deutsches Ehepaar, permanent vor Ort). ´Piano TERRA´ - siehe Grundriss. Links die Wohnung ´MARE´ mit 2 Schlafzimmern (eines davon ausgestattet mit einem Doppelbett, das zweite Schlafzimmer mit zwei Einzelbetten). Im rechten Teil die Wohnung ´MONTI´ mit ebenfalls 2 Schlafzimmern (das kleinere mit einem Doppelbett, das grössere mit einem Doppelbett und zwei Einzelbetten ausgestattet). Rechts unten das Monolocale ´SOLE´, ausgestattet mit einem Schlafsofa für 2 Personen. Das Besondere ist, dass durch das Öffnen der Verbindungstür die Apartments MONTI und SOLE zu einem grossen Apartment mit 8 Schlafplätzen und 2 Dusche/WC Räumen verbunden werden können. Daneben hält das EG noch den Mehrzweckraum ´Pluriuso´ bereit. Dieser wird zur Zeit als Seminarraum genutzt, jedoch sind Dusche/WC sowie Vorbereitungen für eine Küchenzeile (Gasanschluss) vorhanden. Eine Nutzung als weiteres Monolocale bzw. als Sommerküche, beispielsweise in Verbindung mit der davor liegenden Terrasse, ist ebenfalls möglich. ´Piano PRIMO´ - siehe Grundriss. Das Obergeschoss wurde als komplett separate Wohnung konzipiert, durch eine Aussentreppe erreichbar, vollkommen separat vom EG. Für den hier gezeigten Grundriss, sowie für eine mögliche Pergola-Teilüberbauung (´PERGOLATO´) der sehr grossen Terrasse (´TERRAZZO´) liegt eine Baugenehmigung vor. Die Innenarbeiten sind im OG noch nicht erfolgt, somit hat der Käufer die Möglichkeit, diesen Bereich noch komplett nach eignen Wünschen zu gestalten. Auch eine Änderung des Grundrisses wäre noch möglich. Der als Wohnbereich geplante Raum (´SOGGIORNO´) bietet durch das grosszügige, nach Süden orientierte Fenster einen spektakulären Ausblick auf die typische Hügellandschaft der Marken.
 
 
 
 
 
 
 
 
 

Zurück zu liste